FacebookPixel Moradia Isolada T4, Setúbal, Setúbal / Venda / 850000 / Ref. 267

Moradia Isolada T4

Setúbal, Setúbal

Moradia Isolada T4
Enviar imóvel a amigo
Saber mais »
captcha
Campos obrigatórios *
Seguir imóvel Receba um alerta quando existir uma Baixa de Preço
Nome
Insira o código da imagem
captcha
Código
Moradia Isolada T4, Setúbal, Setúbal 850 000 € Ref: 267
4
3
1
200 m²
210 m²
420 m²
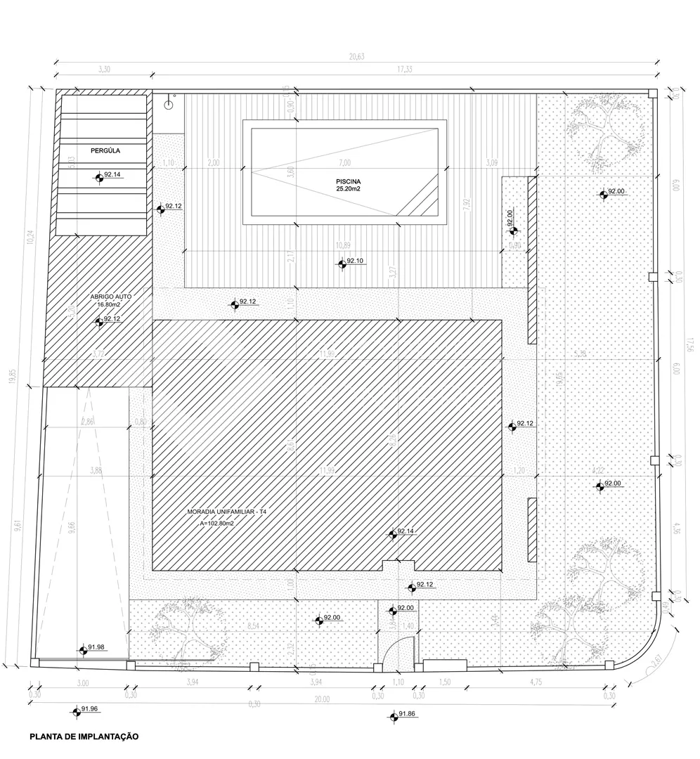
Moradia de Luxo T4 isolada com excelentes áreas, inserida num lote total de 420m2, em zona tranquila de Azeitão.

Azeitão é uma região afamada pela beleza das suas paisagens junto à Serra da Arrábida e à riqueza das suas quintas vinícolas com terrenos férteis, com uma grande proximidade do Oceano Atlântico.

Encostada à emblemática Serra da Arrábida onde se encontram as mais belas praias da Europa, entre elas a galardoada praia de Galápos. Azeitão, fica a pouco mais de meia hora de Lisboa, e a 5 minutos da estação ferroviária, que dispõe de um rápido e cómodo acesso a Lisboa.

Lote do terreno: 420m2
Área útil: 200m2

- Isolamento a Capoto
- Caixilharia de PVC termolacado com vidro duplo
- Estores Elétricos
- Portões Elétricos
- Porta Blindada
- Cozinha totalmente equipada
- Painéis Solares com Termossifão de 300L
- Vídeo Porteiro
- Ar Condicionado
- Aspiração Central
- Piso Radiante nos WC's
- Tetos falsos com iluminação LED
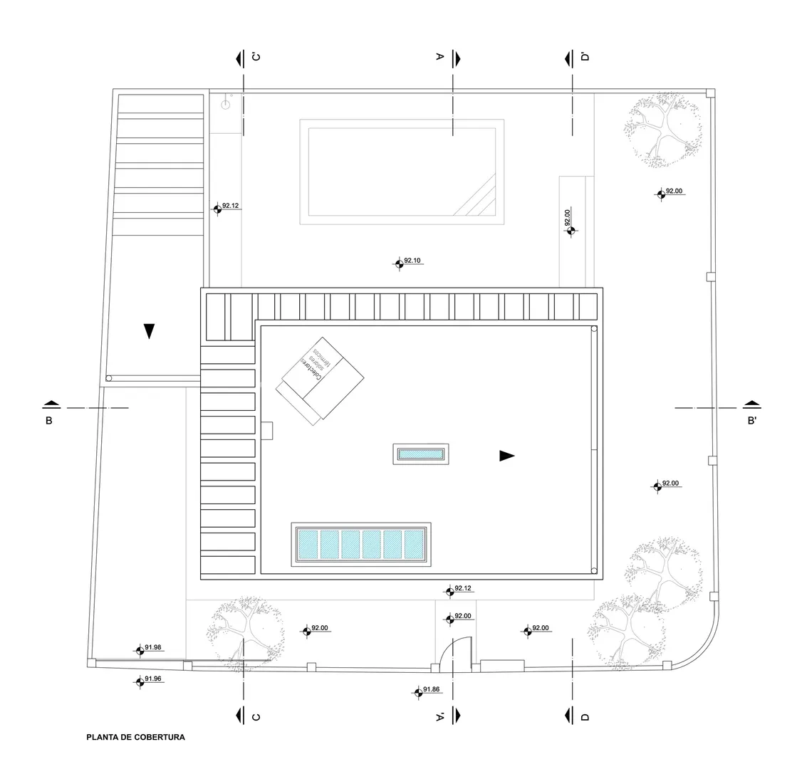
- Piscina
- Lugar de Garagem com 17m2


Com áreas magníficas, compostas por:

Piso 0:

- Lugar de Garagem com 17m2;
- Cozinha com 16m2;
- Lavandaria com 3m2;
- Sala com 30m2;
- Quarto com 12m2;
- WC com 4m2;
- Corredor com 9m2
- Alpendre com 16m2;

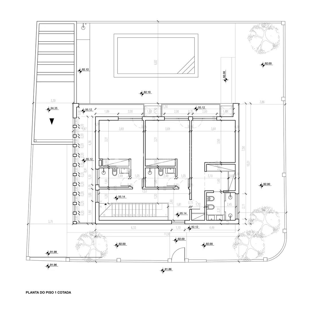
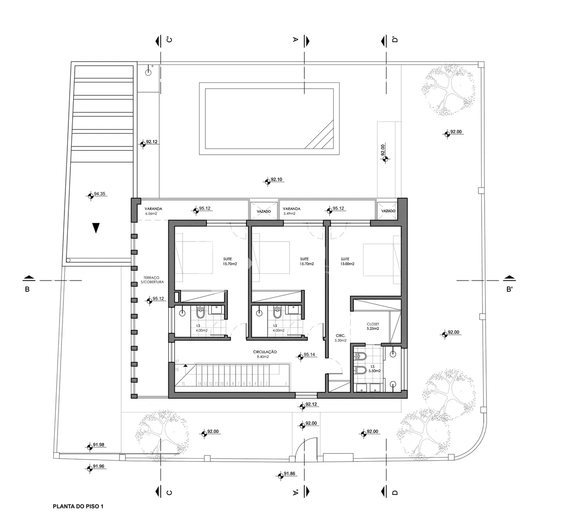
Piso 1:

- Suite Principal com 29m2;
- Suite com 20m2;
- Suite com 20m2;
- Corredor com 9m2;
- Varanda com 12m2;


Venha viver no campo a uma pequena distância de Lisboa e Setúbal.

Não perca esta oportunidade! Peça-nos informações ou agendamento de visita.
 
Tipo de imóvel Moradia Isolada
Tipologia 4 Quartos
Objetivo Venda
Estado Novo
Preço 850 000 €
Ano Construção N/D
País Portugal
Distrito Setúbal
Concelho Setúbal
Freguesia Azeitão (São Lourenço e São Simão)
Zona N/D
Nádia Porto
Nádia Porto
Chamada para a rede móvel nacional
Pretendo ser contactado
Data
Hora
Nome
Contacto
Mensagem
captcha
Código
Características Gerais
Gerais
  •  
Divisões
Divisões Área Pavimento Paredes Tectos Observações
 
Meio Envolvente
  •  
Facilidades
  •  
Domótica
  •  
Energias Renováveis
  •  
Estamos disponíveis para o ajudar Pretendo ser contactado
Data
Hora
Nome
Contacto
Mensagem
captcha
Código
O que é a pesquisa responsável
Esta pesquisa permite obter resultados mais ajustados à sua disponibilidade financeira.