€
EUR
Properties
Contacts
Recruitment
Who are we
News
More
Properties
Contacts
Recruitment
Who are we
News
0
0
Semi-detached house T3+1
Aveiro, Santa Maria da Feira
Back
\
Semi-detached house T3+1 - Aveiro, Santa Maria da Feira
Share Property
Facebook
X
Pinterest
WhatsApp
Copy link
Link copiado
Print sheet
Send property to a friend
Insert a name
Insert an email
Enter a valid email address
Insert a name
Insert an email
Enter a valid email address
I have read and agree to the terms and conditions set forth.
Know more »
To finish this operation you should read and agree with our conditions.
Required fields *
Send
Photos
Videos
Plans
Seguir imóvel
Seguir imóvel
Receba um alerta quando existir uma Baixa de Preço
Name
Insira o seu Nome
E-mail
Enter your email
Enter a valid email address
Li e aceito a
Privacy Policy
To finish this operation you should read and agree with our conditions.
Enter the code from the image
Code
Send
Semi-detached house T3+1, Aveiro, Santa Maria da Feira
450 000 €
Ref:
284
4
2
2
363 m²
575 m²
T3+1 semi-detached house with excellent areas, located in the municipality of Santa Maria da Feira. The most modern materials with excellent quality will be used. House with modern lines and the most current architectural and construction solutions.
Expected Completion:
August 2025
Equipment and details:
- Air conditioning;
- Heat pump;
- Solar Panel;
- Thermal cutting frames;
- Double thermal break glazing;
- Electric shutters;
- False ceilings with built-in spotlights;
- Vinyl laminate flooring;
- Covered with an 8 cm hood;
- Automatic gates;
- Zinc cover;
- Kitchen equipped with stove, oven and extractor fan in an open space with the common room;
- Fireplace with stove;
- Irrigation system;
- Garage with 45m2;
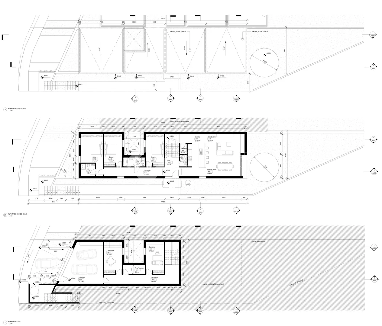
Semi-detached house T3+1 comprising:
Floor -1:
- Garage with 45m2;
- Laundry room with 17m2;
- Technical area with 6m2;
- Corridor with 28m2;
- Office with 17m2;
Ground floor:
- Corridor with 16m2;
- Hall with 8m2;
- 6m2 bathroom;
- Service WC with 3m2;
- Pantry with 2m2;
- Kitchen with 27m2;
- Common room with 45m2;
- Room with 17m2;
- Room with 17m2;
- Suite with 21m2;
- Suite WC with 5m2;
Don´t miss this opportunity! Ask us for information or schedule a visit.
Property Type
Semi-detached house
Typology
4 Bedrooms
Objective
Sell
Condition
Under Construction
Price
450 000 €
Year of Construction
N/A
Country
Portugal
District
Aveiro
County
Santa Maria da Feira
Parish
Santa Maria da Feira, Travanca, Sanfins e Espargo
Zone
N/A
Nuno Santos
+351 961 637 003
Chamada para a rede móvel nacional
I want to be contacted
Date
Time
Name
Insert a name
E-mail
Insert an email
Enter a valid email address
Contact
Enter your phone contact
Message
I request more information, without any commitment, about the property 284
I have read and agree to the terms and conditions set forth.
Privacy Policy
To finish this operation you should read and agree with our conditions.
Code
Enter the code shown in the image
Send
General Features
General
Rooms
Rooms
Area
Floor
Walls
Ceilings
Comments
Surroundings
Facilities
Domotic System (Home automation)
Renewable Energy
We are available to help you
I want to be contacted
Date
Time
Name
Insert a name
E-mail
Insert an email
Enter a valid email address
Contact
Insert your contact details
Message
Li e aceito a
Privacy Policy
To finish this operation you should read and agree with our conditions.
Code
Enter the code shown in the image
Send
O que é a pesquisa responsável
Esta pesquisa permite obter resultados mais ajustados à sua disponibilidade financeira.